El viernes 19 de julio se realizó la primera charla informativa sobre el Programa Municipal «Círculo Cerrado de Viviendas»
Teniendo en cuenta el sostenido crecimiento de la localidad, que implica una permanente demanda de viviendas, el programa busca dar solución a las familias que necesitan un sistema de construcción de viviendas acorde a sus posibilidades. Dicho programa se reglamenta bajo la Ordenanza N° 189/2020 del Honorable Concejo Deliberante de nuestra ciudad.
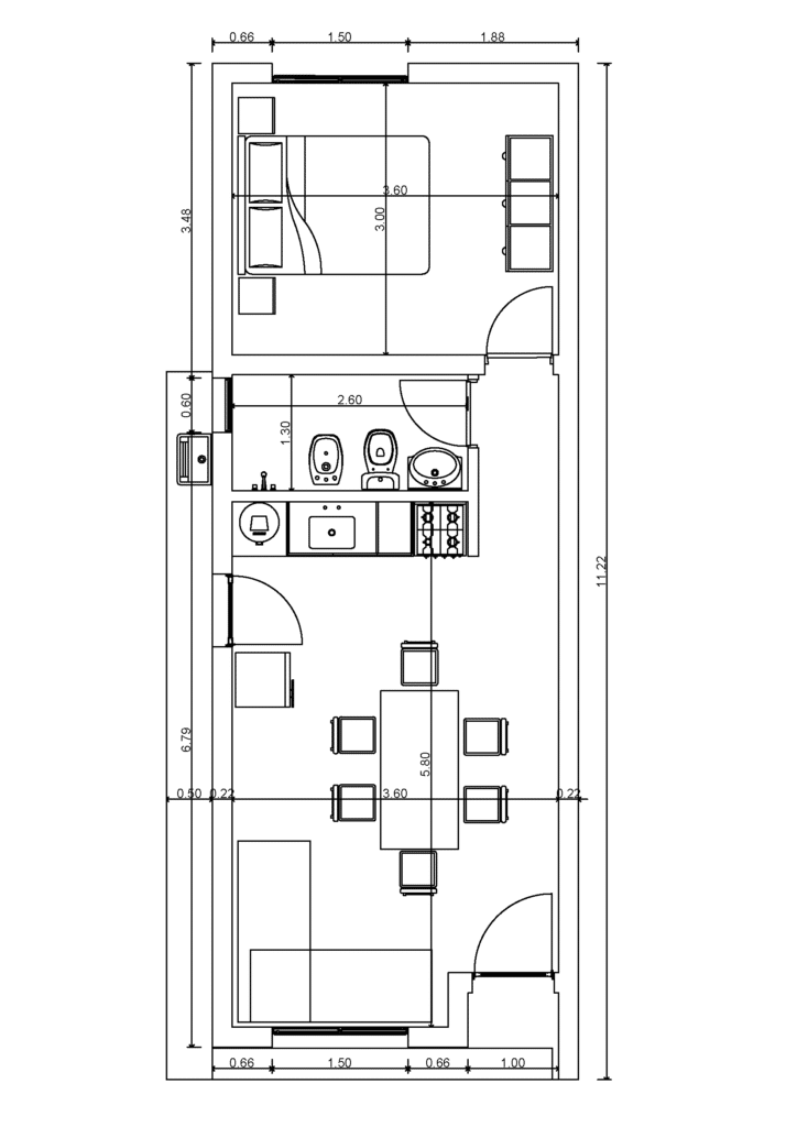
Durante la charla, los ingenieros Santiago Folmer y Franco Marcuzzo presentaron el modelo de vivienda a construir y algunos aspectos a tener en cuenta sobre la misma, como por ejemplo:
- La vivienda se entrega con todos los servicios, lista para poder habitarse.
- La vivienda se entrega sin cerámicos en el piso, con carpeta de hormigón.
- La vivienda se entrega sin cielorraso.
- En cuanto al dibujo de la vivienda adjuntado, se entrega con el baño completo, pero no se incluye el mobiliario que se presenta en la cocina y la habitación, siendo ellos de carácter ilustrativo (Cocina, bacha, mesa, sillas, cama, etc.).









Además el intendente Hernán Kisser comentó sobre los aspectos administrativos del programa y algunos requisitos para quienes deseen inscribirse, algunos son:
- Quien desee inscribirse debe tener un terreno donde construir la vivienda, de no ser así, se puede inscribir con la condición de adquirir uno durante la duración del programa, y no participará de los sorteos hasta no tenerlo.
- El terreno debe ubicarse dentro de la planta urbana de la ciudad y debe estar a nombre del suscriptor, o el mismo tener un poder sobre demostrable él.
- Las características del Modelo Estandarizado de vivienda no podrán ser modificadas.
- El municipio entregará el bien a través de la modalidad «llave en mano».
- Cada contrato individual deberá contar con un seguro de vida obligatorio, cuyo pago estará a cargo del Suscriptor/Adjudicatario.
- Tendrán prioridad de adjudicación todos los aspirantes que no sean poseedores o dueños de vivienda propia al momento de la conformación del círculo cerrado, pudiéndose incorporar quienes sean poseedores o dueños de vivienda solamente luego de agotado el listado de quienes no sean titulares de vivienda propia.
- En la conformación del círculo cerrado se podrán inscribir personas que ya sean dueños o poseedores de viviendas, pero estos no deben superar el 40% del total de participantes que conforman el círculo.
- Las adjudicaciones de construcción de viviendas se realizarán a través de sorteo con bolillero, mensualmente, el primer día hábil posterior al vencimiento para el pago de las cuotas, en lugar y horarios a confirmar en forma pública y por ante Escribano Público que designará la Municipalidad.
Para conocer mas información sobre el programa, podés descargar la ordenanza que lo regula.
Se encuentra abierta la preinscripción al Círculo, para anotarte podés acercarte a mesa de entradas del municipio o comunicarte al 3434567879.




